Raster to CAD Conversion

Raster to CAD Conversion Services

At Consac, we specialize in transforming static scanned drawings, paper blueprints, and PDF files into precise, editable CAD files through our advanced Raster to CAD conversion process. Whether you're working with architectural layouts, mechanical designs, or electrical schematics, our team delivers multi-layered, dimensionally accurate CAD drafts that are ready for use in modern engineering, design, or construction workflows


What is Raster to CAD Conversion?

Raster to CAD involves converting scanned images (raster files) such as TIFFs, PDFs, or JPEGs into vector-based CAD formats (DWG, DXF, etc.). This is essential for updating old paper drawings or scanned plans into editable, scalable CAD files that align with current standards.

We use heads-up digitizing (manual tracing over raster images) rather than automatic conversion tools to guarantee precision, correct layering, and clean geometry—ideal for projects that require high fidelity and professionalism.


Our Raster to CAD Service Offerings

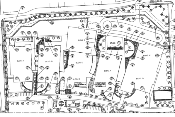
Scanned Drawing Conversion

Experience seamless transformation of scanned drawings into dynamic CAD drafts. Our heads-up digitizing approach ensures multi-layered precision, enhancing productivity while maintaining cost-effectiveness and quick turnaround times. Trust us for accurate CAD drafting derived from paper and PDF sources, guaranteeing high accuracy in every detail.

Redline Markups Integration

Facilitate collaboration and streamline feedback with our redline markup services. Enable efficient communication among teams, ensuring precise alterations and improvements directly on CAD drafts for enhanced project accuracy.

Indexing, Renaming, and Bulk Conversions

Optimize your workflow with our indexing and renaming services, ensuring easy access and organization of your CAD files. Experience the convenience of bulk drawing conversions, saving time and resources while maintaining quality across large volumes of drawings.


Why Choose Consac for Raster to CAD?

  • Heads-Up Digitizing Precision: Manual vectorization ensures clean lines, correct layering, and dimensionally accurate CAD files
  • • Faster Turnaround Times: Get high-quality conversions delivered quickly without compromising accuracy.
  • • Affordable CAD Drafting Services: Competitive pricing models for bulk drawing conversions and long-term contracts.
  • • Integrated Redline Workflow: Seamlessly incorporate markup comments and revisions to reduce back-and-forth with your team.

At Consac, we specialize in providing top-tier CAD drafting services, offering a holistic solution for your design needs.

Hardcopy Drawings
Scanning
Raster Image Editing
  • Deskew
  • De-speckling
  • Thinning / Thickening
  • Line Break Filling
  • Drawing in Raster Mode
  • Text Editing / Editing Polylines
  • Mosaicking
Archive
Plotting
Hybrid Editing
  • Symbol / Block Insertion
  • Editing Raster & Vector Data
  • Search & Replace
Digitization
  • Tracing
  • Semi-automatic
  • Automatic
Archive
Plotting


FAQs:

What file formats do you accept for raster input?

We accept a wide range of raster formats including PDF, TIFF, JPG, PNG, and BMP.

What CAD formats do you deliver?

We typically deliver in DWG and DXF formats, but we can provide other file types upon request.

How accurate are your raster to CAD conversions?

Our heads-up digitizing process ensures high accuracy. All CAD drawings follow layering standards, correct scaling, and are editable.

Can you convert hand-drawn sketches into CAD?

Yes, we can. As long as the scan or photo of the sketch is clear, we can create accurate CAD drawings from it

How fast is your turnaround time?

Turnaround depends on drawing complexity and volume. However, most single-sheet conversions are completed within 24–48 hours.

Do you support batch or bulk conversions?

Absolutely. We specialize in bulk raster to CAD conversions for legacy archives, engineering departments, and facilities managers.